WDS型熱水循環增壓管道泵是一種廣泛應用于工業與民用領域的高效流體輸送設備,主要用于輸送清水或物理化學性質類似于清水的液體,具有結構緊湊、運行平穩、維護方便等優點。

一、基本結構與工作原理
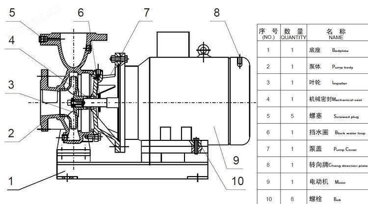
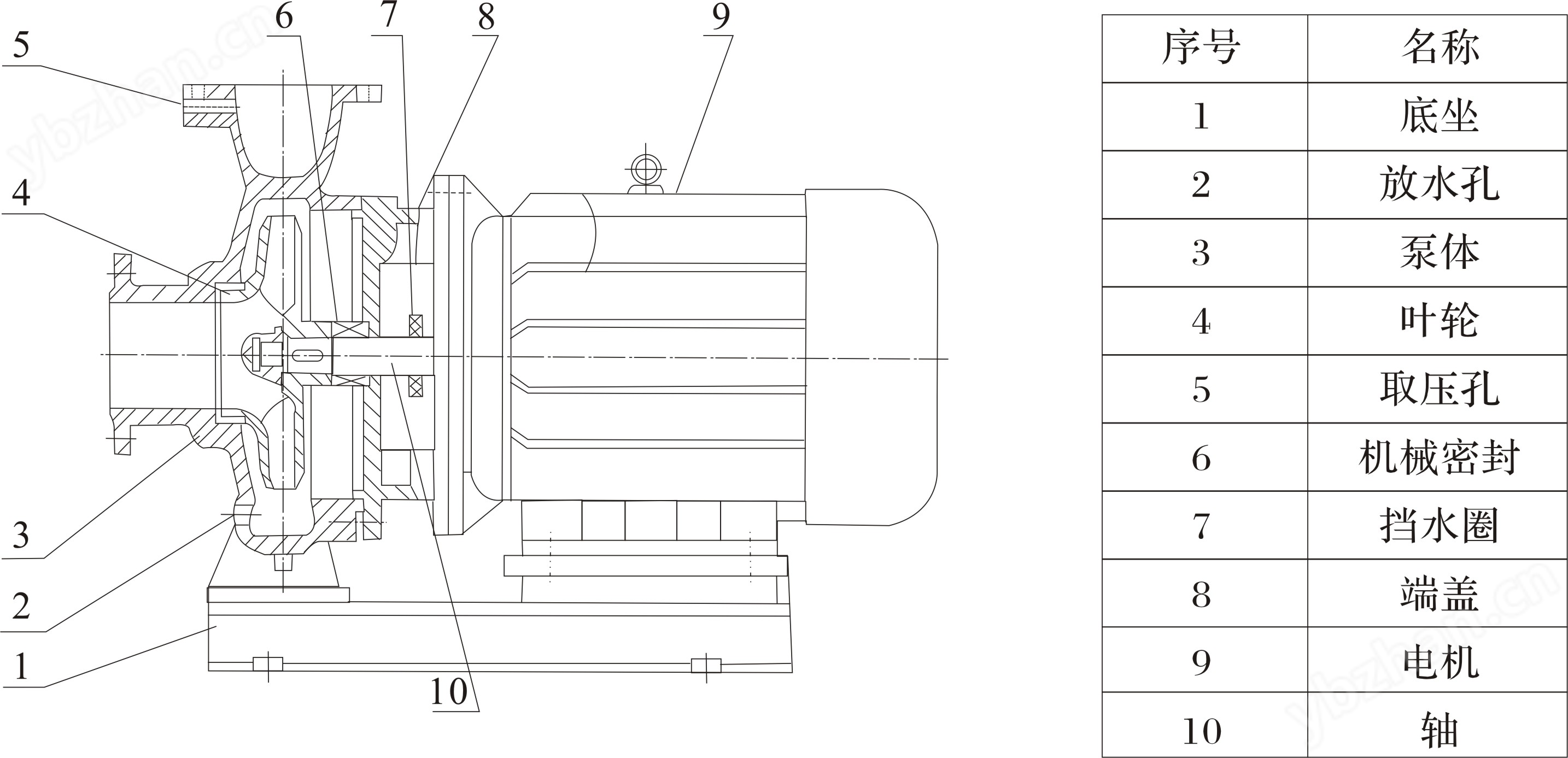
臥式清水管道泵屬于離心泵的一種,采用臥式安裝方式,進出口同軸同徑,可直接串聯于管道系統中,像閥門一樣安裝,節省空間。其核心工作原理是通過電機驅動葉輪高速旋轉,產生離心力,使液體從葉輪中心被甩向四周,從而實現增壓輸送。
主要組成部分包括:
?葉輪?:核心做功部件,通常為單級單吸閉式設計,材質為鑄鐵或不銹鋼;
?泵體與泵蓋?:構成工作腔,采用后開門結構,檢修時無需拆卸管路;
?泵軸與軸承?:支撐葉輪運轉,采用滾動軸承承受徑向與軸向力;
?密封裝置?:多采用機械密封,防止泄漏,部分型號也可選填料密封;
?電機與聯軸器?:通過加長彈性聯軸器連接,便于拆裝維護。
二、操作步驟
1. 啟動前準備
?灌液與排氣?:打開進出口閥門,向泵腔灌滿介質,排空空氣;嚴禁空轉或干轉,以免燒毀密封件。
?盤車檢查?:手動盤車3-5圈,確保轉動靈活無卡滯;檢查軸承油位在油標中心線,油質清潔無雜質。
?密封確認?:機械密封需沖洗水系統開啟,壓力高于介質壓力0.1-0.2MPa。
2. 啟動與運行
?空載試運行?:通電后觀察電機轉向是否正確,運行2小時以上,確認傳動平穩、無異常噪音。
?負載運行?:逐步打開出口閥門,監控壓力表顯示穩定;運行中保持流量在額定值70%-110%區間,避免低流量導致汽蝕。
?參數監控?:定期檢查進出口壓力、電流值,確保在高效區運行;振動值控制在較低水平,防止部件磨損。
3. 停機操作:
?正常停機?:先關閉出口閥門,再停電機;長期停用需排空介質,涂油脂保存。
?緊急停機?:遇異常噪音、泄漏或軸承過熱,立即停機檢修。
性能參數與選型要點
參數 典型范圍
流量 1.5–2020 m3/h
揚程 5–150 m
功率 0.75–160 kW
工作壓力 ≤1.6 MPa
介質溫度 -20℃~+240℃(依型號而定)
三、選型建議:?
明確輸送介質類型(清水、熱水、腐蝕性液體或油品);
根據系統需求確定流量、揚程和工作壓力;
考慮環境溫度與安裝空間,優先選擇節能高效、低噪音產品;
對于含微量顆粒或高腐蝕性介質,應選用耐磨密封或氟塑料襯里泵型。

四、WDS型熱水循環增壓管道泵優勢特點
運行平穩?:泵軸與電機同軸設計,葉輪動平衡優異,振動小。
密封可靠?:采用硬質合金機械密封,泄漏量極低,適應多種介質。
維護便捷?:后開門結構設計,更換密封或軸承無需拆卸管路。
節省空間?:出口可左右或向上布置,便于管道布局。
智能控制?:部分部分型號支持變頻調節,實現恒壓供水,節能15%–25%。

































